Дома под ключ в Курске
Отзывы из Яндекс Карт
4.9
112 отзывов
Дополнительные услуги 88%
2 154 оценок
Комплектации 89%
1 535 оценок
Планировки 90%
2 484 оценок
Проекты 93%
2 231 оценок
С
Всеволод Алешин04/24/2026 г.
Все основные работы сделаны качественно, а вот с мелочами (типа установки перил на крыльце) пришлось повозиться самому, сделали не очень.
С
Макар Мешков02/17/2026 г.
Строили мне каркасник 7х8 под ключ. Приехали, участок неровный был, но фундамент вывели идеально. Работали даже в дождь, чтобы сроки не сорвать. Уважаю таких.
С
Ренат Петров08/11/2025 г.
Материал привезли качественный, брус ровный и сухой, без следов плесени или синевы, что сразу внушило доверие к компании как к надежному поставщику.
Отзывы из Google Карт
4.8
67 отзывов
Дополнительные услуги 88%
2 154 оценок
Комплектации 89%
1 535 оценок
Планировки 90%
2 484 оценок
Проекты 93%
2 231 оценок
С
Вова Троцкий03/10/2026 г.
Гарантию дали 5 лет на конструкции. Пока прошел только год, обращаться не пришлось. Надеюсь, и не придется.
С
Семен02/20/2025 г.
Решил построить баню и остановил выбор на профилированном брусе от этой компании — результат превзошел ожидания, сруб дал идеальную усадку, а сама баня держит жар просто волшебно.
Отзывы из 2гис
4.9
33 отзывов
Дополнительные услуги 88%
2 154 оценок
Комплектации 89%
1 535 оценок
Планировки 90%
2 484 оценок
Проекты 93%
2 231 оценок
С
Демьян Золотов01/31/2026 г.
Дом 6,5х6,5 с балконом и навесом, для постоянной жизни маловат, но для лета пойдёт. Утеплили плоховато, пришлось самому пенопластом доклеивать изнутри. При приёмке я не заметил, а зимой понял.
С
Яромир Масленников05/11/2025 г.
Бригада от компании – это настоящие профессионалы, которые знают и любят дерево.


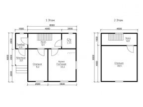
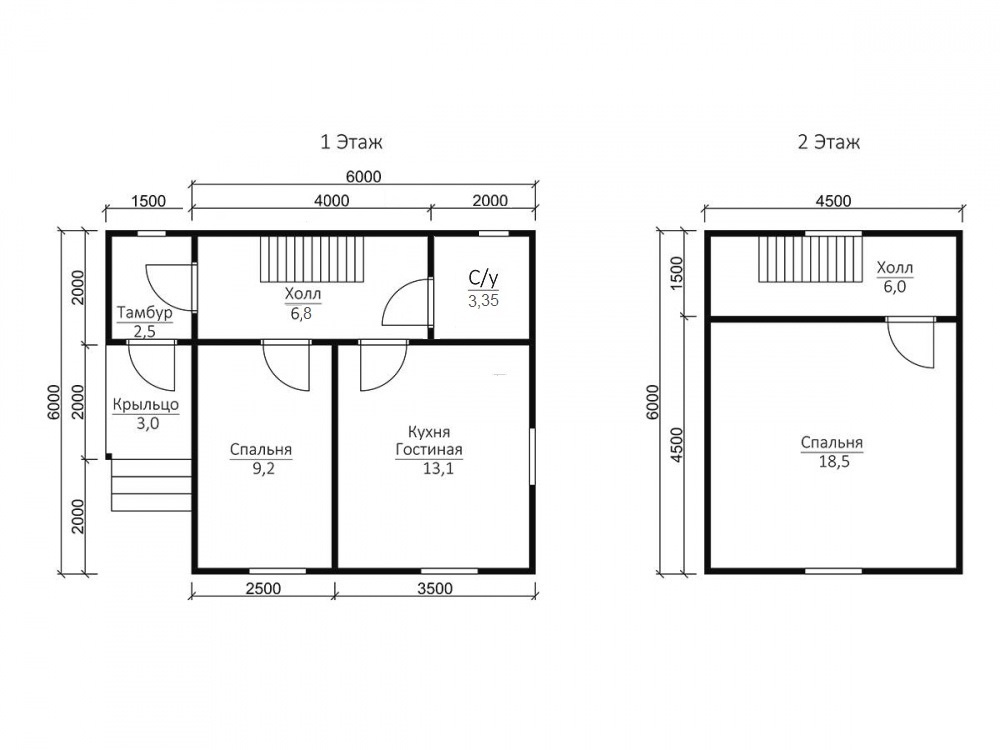
Проект №17 Дом с мансардой 6х7,5

каркас из строганой доски
Создайте свой план для этого проекта
и отправьте его нам на расчет в один клик.
Каркасный дом (150 мм) 6х7,5 Толщина утепления 150 мм 1841400 Заказать
Каркасный дом (200 мм) 6х7,5 Толщина утепления 200 мм 2011400 Заказать

Пользуйтесь нашим планировщиком, чтобы получить свою индивидуальную планировку.

С использованием планировщика можно создавать планы, схемы, чертежи, эскизы уникального дома с мансардой, эркером, с требуемым числом комнат. В конечном итоге вы получите современный проект, который отвечает вашим запросам.

Заказывая дом можно подобрать подходящий вид крыши: четырехскатная, двускатная и вальмовая. Двухскатную крышу считают особенно востребованной у малометражных домов.

Самые популярные размеры сегодня: мини - до 50м2 (как правило, одноэтажные); компактные - от 70 до 100м2 (обычно 2х этажные); большие - от 150 кв. М и свыше.

Строим дуплексы - большие каркасные дома с двумя входами на несколько семей. Дома строятся для двух хозяев и разделяются на две части, для каждой половины - отдельный вход.


Наши работы

Перейти в галерею


Комплектация

Площадь застройки: 45 м2
Длина: 6 м
Ширина: 7.5 м
Общая площадь: 60.5 м2
Исполнение Под ключ (с отделкой)
Фундамент Свайно-винтовой или ж/б сваи (рассчитываются отдельно).
Гидроизоляция фундамента Рубероид в два слоя.
Основание (обвязка) Из обрезного бруса 150х150 мм. 150х200 мм. согласно выбранной толщине утепления. Торцевая доска строганая 45х145/45х195+/-5 мм. согласно выбранной толщине утепления. Обработка антисептиком.
Цокольное перекрытие Строганая доска камерной сушки 45х145/45х195+/-5 мм. с шагом 590 мм. Обработка антисептиком.
Пол черновой Обрезная доска камерной сушки 20х100 мм.
Влаго-ветрозащита чернового пола Мембрана Ондутис А100.
Внешние стены Стойки каркаса из строганой доски камерной сушки 45х145/45х195+/-5 мм. с шагом 590 мм. Верхняя двойная и нижняя обвязки из строганой доски камерной сушки 45х145/45х195+/-5 мм. Разгрузочный ригель из строганой доски 45х145+/-5 мм. Укосины из строганой доски 20х95 мм.
Перегородки Стойки каркаса из строганой доски камерной сушки 45х95+/-5 мм. с шагом 590 мм. Верхняя двойная и нижняя обвязки из строганой доски 45х95+/-5 мм. Разгрузочный ригель из строганой доски камерной сушки 45х145+/-5 мм. Укосины из строганой доски камерной сушки 20х95 мм.
Сборка каркаса На гвозди.
Высота от пола до потолка Дом одноэтажный: 2,5 м. Дом с мансардой: 1-ый этаж- 2,5 м.
2-ой этаж (мансарда)- 2,3 м.
Дом в полтора и два этажа:
1-ый этаж 2,5 м.
2-ой этаж 2,4 м. в полутораэтажном доме
2,5 м. в двухэтажном доме.
Внешняя отделка стен Имитация бруса камерной сушки, сорт АВ, толщиной 17 мм. Монтаж через строганый брусок камерной сушки 45х45+/-5 мм. (вентилируемый фасад). Влаго-ветрозащитная мембрана- Ондутис А100.
Внутренняя отделка стен, перегородок Евровагонка камерной сушки, сорт АВ, толщиной 12,5 мм. по строганой рейке 20х40+/-5 мм. либо ГКЛ 12,5 мм.
Отделка потолка Евровагонка камерной сушки, сорт АВ толщиной, 12,5 мм. по строганой рейке 20х40+/-5 мм. либо ГКЛ 12,5 мм.
Пол чистовой Шпунтованная доска камерной сушки толщиной 35-36 мм. сорт АВ. по строганой рейке 20х40+/-5 мм. либо шпунтованная ДСП 16 мм. по разряженной обрешётке из строганой доски камерной сушки 20х95+/-5 мм.
Утепление (пол, потолок) Минеральная вата Knauf 150/200 мм. согласно выбранной толщине утепления.
Утепление стен Плитный утеплитель Rockwool, толщиной 150/200 мм. согласно выбранной толщине утепления.
Звукоизоляция перегородок Плитный утеплитель Rockwool, толщиной 100 мм.
Пароизоляция (стены, перегородки, пол, потолок) Плёнка Ондутис R70. Дополнительная герметизация нахлёстов/примыканий пароизоляционной плёнки клейкой лентой Delta.
Окна Двухкамерные стеклопакеты ПВХ белого цвета, профиль 60 мм. В комплекте: отливы, подоконники, москитные сетки.
Двери Входная- металлическая, утеплённая (Россия). Межкомнатные- филёнчатые.
Наличники на окна и двери Наличник деревянный, строганый, камерной сушки 70-90 мм. с двух сторон.
Лестница (при наличии второго этажа) Деревянная, одно или двухмаршевая. Перила- заводские резные, балясины- заводские точеные, устанавливаются стартовые точёные столбы. Ступени 40х200 мм. Тетива лестницы- 90х140 мм.
Крыша Двускатная, ломаная или вальмовая в соответствии с проектом.
Стропильная система Выполнена из строганой доски камерной сушки 45х145/45х195+/-5 мм. Шаг установки стропил 590 мм.
Обрешётка Выполняется из строганой доски камерной сушки толщиной 20х95+/-5 мм. Шаг крепления обрешетки 350 мм. Контробрешётка выполняется из строганого бруска камерной сушки 45х45+/-5 мм. Крепится по стропилам (вентиляционный зазор).
Подкровельная мембрана Ондутис А100
Кровельное покрытие (на выбор) Металлочерепица 0,45 мм. Цвет на выбор.
Фронтоны (при наличии) Каркас из строганой доски камерной сушки 45х145/45х195+/-5 мм. Обшиваются имитацией бруса камерной сушки, сорт АВ, толщиной 17 мм. Монтаж через строганый брусок камерной сушки 45х45+/-5 мм. (вентилируемый фасад). Влаго-ветрозащитная мембрана- Ондутис А100. Монтаж вентиляционных решёток.
Свесы крыши Ширина 400 мм. Подшиваются вагонкой камерной сушки, сорт АВ.
Терраса/балкон (при наличии) Устанавливаются опорные столбы из строганного бруса камерной сушки 140х140 мм.
Отделка потолка террасы/балкона Евровагонка камерной сушки толщиной 12,5 мм. сорт АВ.
Пол террасы/балкона Шпунтованная доска камерной сушки толщиной 35-36 мм. сорт АВ.
Ограждение террасы/балкона Перила- строганая доска. Балясины- точеные, фигурные. Либо ограждение в скандинавском стиле. Устанавливаются ступени у входа.
Допуск на геометрические параметры Составляет +/- 50 мм по длине с каждой стороны.
Допускается стыковка имитации бруса, вагонки и половой доски По всему периметру стен дома (если ширина и длина дома более 6,0 метров). Вагонки и доски пола в каждой отдельной комнате.
Допуски по имитации бруса, вагонке, доске +/- 5 мм.
В стоимость включена Доставка комплекта материала в радиусе 500 км. от г. Пестова Новгородской области и сборка дома на вашем участке.
Гарантия 5 лет.
Бытовка строительная 2,0х3,0 м. каркасно-щитовая. Стоимость 23000 руб. Остаётся на участке Заказчика.
Туалет 1,0х1,0 м. каркасно-щитовой. Стоимость 12000 руб. Остаётся на участке Заказчика.
Генератор Стоимость аренды на весь срок строительства 15000 руб. ГСМ за счёт Заказчика.

Постройка домов выполняется в нескольких видах: под ключ и под усадку, когда сруб будет отстаиваться некоторое время.

В зимний период лучше строить дома в холодную погоду, чтобы каркас не отсырел, летом - не в дождливую.

Наиболее подходящими для сада или дачи стали малобюджетные домики на винтовых сваях, на нашем сайте можно найти одноэтажные и полуторатажные дома.

В случае если дом строится для проживания круглый год, советуем теплые дома на плитных и ленточных фундаментах.

Имеется два размера утепления: 200 мм и 150 мм. Каркасные дома с толщиной утеплителя двести миллиметров получаются теплее, но стоят дороже.

Дополнительные услуги


Представленный проект 17 – дом в каркасном исполнении общей площадью 60.5 кв.м. и размером по наружной грани стен 6х7,5 м.. полутораэтажный коттедж с будет удобным и для всесезонного проживания семейной пары, и в качестве сезонного отдыха.

Просторные комнаты с высотой потолков 2,45м, обшитых деревянной вагонкой, обеспечены естественным светом и воздухообменом благодаря двойным стеклопакетам. Окна выполнены в зимнем двойном варианте. Помещения разделяют филенчатые двери. Входная дверь – металлическая, глухое полотно.

Крыша двускатная с покрытием из ондулина, цвет по желанию заказчика: зеленый, красный, коричневый.

Дополнительное утепление, паро- и гидроизоляция доступны для любого проекта, разработанного компанией. Строительство каркасного дома с компанией «Дача из бруса» в Курске – это надежное жилье в короткие сроки.


Популярные проекты


Дома из бруса с мансардой Бани из бруса 6х8 Маленькие бани из бруса
хит продаж
Тип:
Общая площадь: 2
1964900
от 1871400
хит продаж
Тип: с большой террасой
Общая площадь: 2
3077900
от 2931400
хит продаж
Тип:
Общая площадь: 2
3004400
от 2861400
Дома из бруса

Заказать или задать вопрос



Заказать или задать вопрос

Заказать звонок